




Development Land in London Road for Sale - £175,000
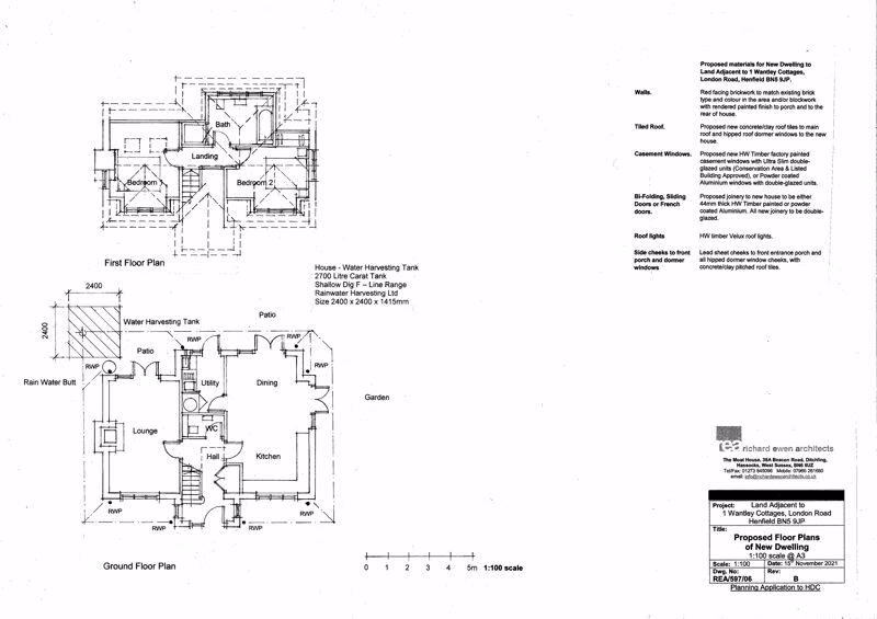
A rare opportunity to purchase a building plot to construct a two-bedroom detached chalet property situated on the Northern periphery of Henfield Village, close to local amenities and Countryside walks. Planning permission has been granted by Horsham District Council (Original Planning Ref DC/21/...
Development Land in London Road for Sale - £175,000
Description
A rare opportunity to purchase a building plot to construct a two-bedroom detached chalet property situated on the Northern periphery of Henfield Village, close to local amenities and Countryside walks. Planning permission has been granted by Horsham District Council (Original Planning Ref DC/21/...
Contact Agent
Smart Picks — Professionals Relevant to This Land
Based on this property's key features, here are the specialists you may want to consult as part of your due diligence: land agents, rural solicitors and planning consultants.

Land Agents
Essential for navigating the land market, finding buyers, and securing the best price.

Rural Solicitors
Significant investment (£175K+) requires legal expertise for conveyancing, title checks, and transaction security.

Planning Consultants
Planning-sensitive site needs expert guidance for applications and development strategy.
Location
London Road